华球球赛是致力于打造绿色办公室华球球赛,专注办公室华球球赛设计的济南华球球赛公司

济南办公室华球球赛设计-济南华球球赛公司-山东鲁工装饰设计有限公司

全国统一服务热线
0531-58763069



大家都在搜: 办公室华球球赛 展厅华球球赛 幼儿园华球球赛 店铺华球球赛 餐饮华球球赛

列表页banner图
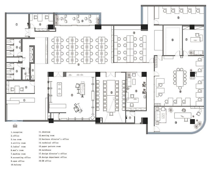
山东东图服装设计公司-600平办公室华球球赛
文章作者:山东鲁工装饰 上传更新:2020/08/20

项目名称:山东东图服装设计公司

施工面积:600m²(包含办公区+展厅)
设计+施工方:华球球赛

前厅

平面图


开放办公区


办公区2


茶水间


会议室


洽谈会客区


老总办公室


展厅设计


展示区


展示区2

华球球赛报价咨询
免费热线:
0531-58763069

电话:0531-58763069